Leave a Message

Thank you for your message. We will be in touch with you shortly.

Explore Our Properties

Property Description

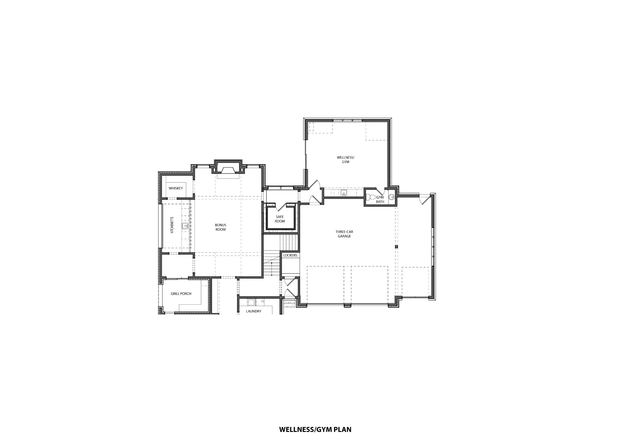
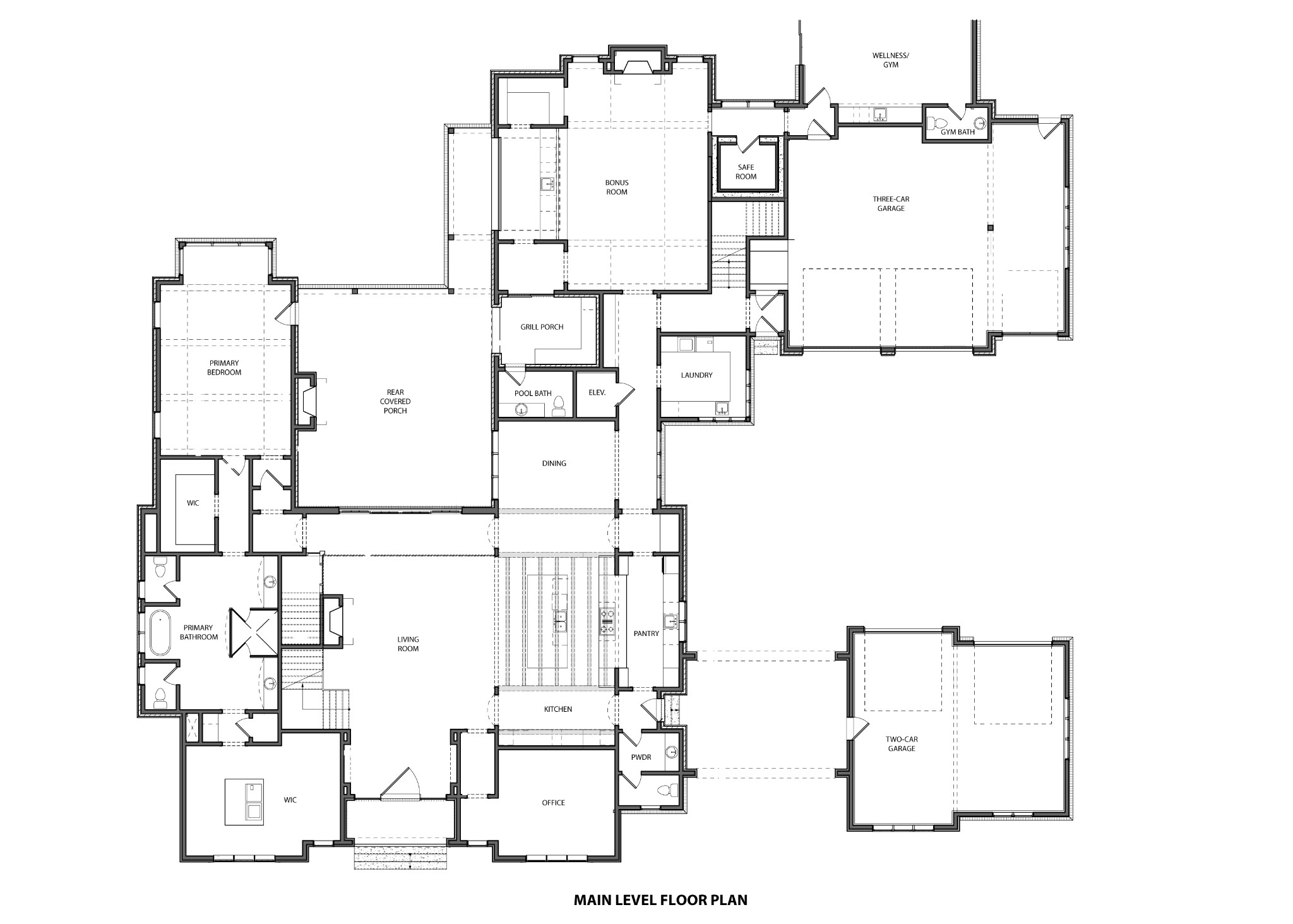
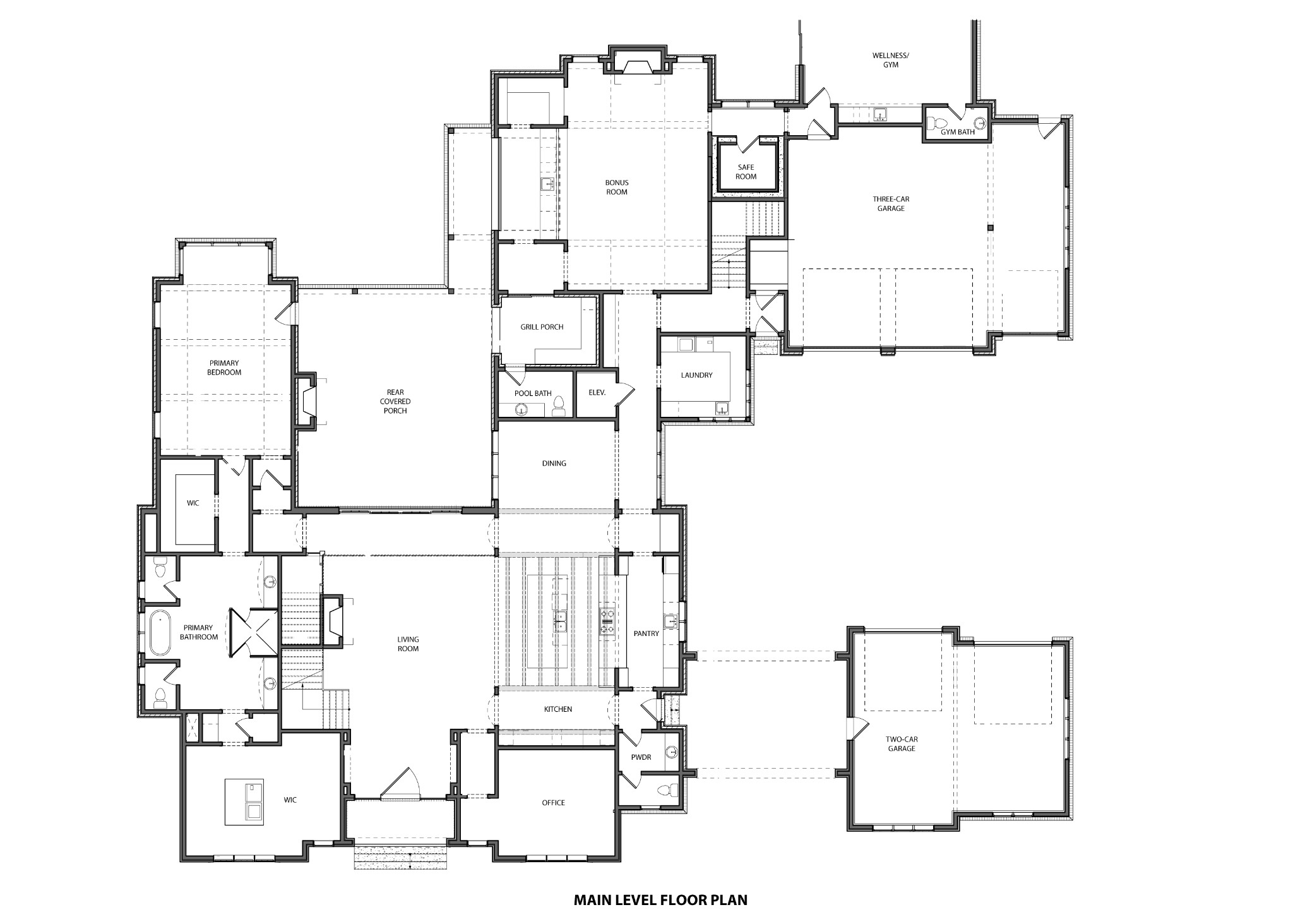
Incredible new construction by Trace Construction on a pristine 1.74-acre lot in the gated community of Sawyer's Creek. Perfectly positioned between the charm of Leiper's Fork and the vibrancy of historic Downtown Franklin, this home offers a lifestyle of elegance, wellness, and connection. Every detail has been carefully curated, beginning with European white oak engineered hardwood flooring, 10" white oak baseboards, and solid white oak doors stained to match. Custom ArcusPlaster treatments bring subtle texture to the main-level walls, creating an atmosphere of quiet sophistication. The kitchen is a true showpiece, featuring a floating vent hood, quartzite countertops, and full-height backsplash. Top-of-the-line appliances include a Wolf 48" dual fuel range with griddle, Subzero refrigerator and freezer columns, Cove integrated dishwasher, Wolf microwave drawer, built-in filtered water chiller, and Scotsman ice maker. Multiple Zephyr beverage centers are strategically placed throughout the home, including the kitchen, bonus room bar, wellness room, morning bar, and even the primary suite closet. The two-story great room makes a statement with an Isokern firebox, ArcusStone plaster mantle, and a temperature-controlled glass-enclosed wine room beneath the staircase. The main-level bonus room, with its vaulted ceiling, beams, and sliding service window, offers a full bar and a private whiskey room, while the study blends beauty and function with custom shelving, uplighting, and library lights. Designed for total well-being, the main-level wellness room includes rubber flooring, an infrared sauna, cold plunge, beverage center, and water station. The vaulted primary suite is a retreat with white oak beams, lighting control, and spa-inspired bath featuring reeded cabinetry, soaking tub, steam shower, and Arcus plaster accents. The closet rivals a boutique with an island housing a washer and dryer, and makeup vanity.

Overview

Property Status
For Sale
Lot Size
1.74 Acres
MLS ID
3060988
Property Type
Residential
Year Built
2025

Features & Amenities

Total Area
9,110 Sq.Ft.
Neighborhood
Leipers Fork
Stories
2
Garage Spaces
5.0
Water Source
Public
Utilites
Water Available
Pool
In Ground
Lot Features
Cleared, Level
Parking
Garage Door Opener, Garage Faces Side
Heat Type
Central
Air Conditioning
Central Air
Laundry Room
Electric Dryer Hookup, Washer Hookup
Appliances
Built-In Electric Oven, Double Oven, Gas Range, Dishwasher, Disposal, Dryer, Freezer, Ice Maker, Microwave, Refrigerator, Washer
Other Interior Features
Bookcases, Built-in Features, Elevator, Entrance Foyer, Extra Closets, High Ceilings, Hot Tub, In-Law Floorplan, Open Floorplan, Pantry, Walk-In Closet(s), Wet Bar
Sewer
Septic Tank
Security Features
Smoke Detector(s)
Elementary School
Winstead Elementary School
Middle School
Legacy Middle School
High School
Independence High School
Sales Price
$8,500,000
Real Estate Tax
$39,950/yr
HOA
$7,825/yr

Downloads

1518 Lurah Ln

Schedule a Tour

We would love to help you see this beautiful home! As a full-service brokerage, we can help you tour. Please submit an offer, and answer questions about the buying process.

Enter a valid email

Thank you

for your interest in 1518 Lurah Ln, Franklin, TN 37064

back to page
1518 Lurah Ln
Navigate
Leipers Fork

Explore Leipers Fork

read more

Mortgage Calculator

Estimate your monthly mortgage payment, including the principal and interest, property taxes, and HOA. Adjust the values to generate a more accurate rate.
$0,000 Your Payment 20 15 65
$0,000 Your Payment

I'm Interested In

1518 Lurah Ln

or
  • CallLisa Culp Taylor

    License #00262332

    (615) 300-8285
  • Follow Us On Instagram